

















Carpathia Residence activează pe piața imobiliară încă din 2006, construind de-a lungul timpului proiecte rezidențiale apreciate în Iași, București și în Chișinău. Experiența acumulată și standardele ridicate se reflectă acum într-un nou complex rezidențial, conceput pentru confort, siguranță și stil de viață modern.
Ansamblul este situat pe Calea București nr. 248, beneficiind de două căi de acces – atât din Calea București, cât și din strada Nucului – oferind o circulație fluidă și o conectivitate ideală, indiferent de direcția din care vii.
Ce găsești la Carpathia Residence:
-Apartamente noi, luminoase, cu compartimentări inteligente, de la 1 până la 4 camere
-Finisaje moderne și materiale de calitate superioară, precum: tâmplărie Veka cu 3 foi de sticlă, încălzire în pardoseală, izolație termică și fonică
-Spații verzi întinse pe o suprafață de 54% din terenul ansamblului
-Facilități integrate: spații comerciale, locuri de joacă, zone pietonale sigure și acces prin rampă
-O investiție sigură, realizată de un dezvoltator cu un portofoliu solid
-Parcare subterană desfășurata pe 2 niveluri
-Dublă priveliște, atât înspre oraș, cât și spre munți
Fie că îți cauți o locuință pe termen lung sau dorești o investiție imobiliară stabilă, Carpathia Residence îți oferă toate avantajele pentru un stil de viață echilibrat și confortabil.
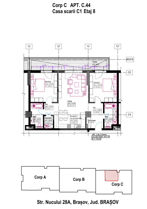
Apartament C44
Suprafață utilă: 105,11 m²
Etaj: 8 din 8
📞 Contactează-ne pentru detalii suplimentare, disponibilități și programarea unei vizionări!