







Agentia Imobiliara Settlers oferă spre vânzare un spațiu comercial modern, ideal pentru clinici, laboratoare, showroom-uri sau birouri, amplasat într-o zonă cu vizibilitate excelentă și acces facil.
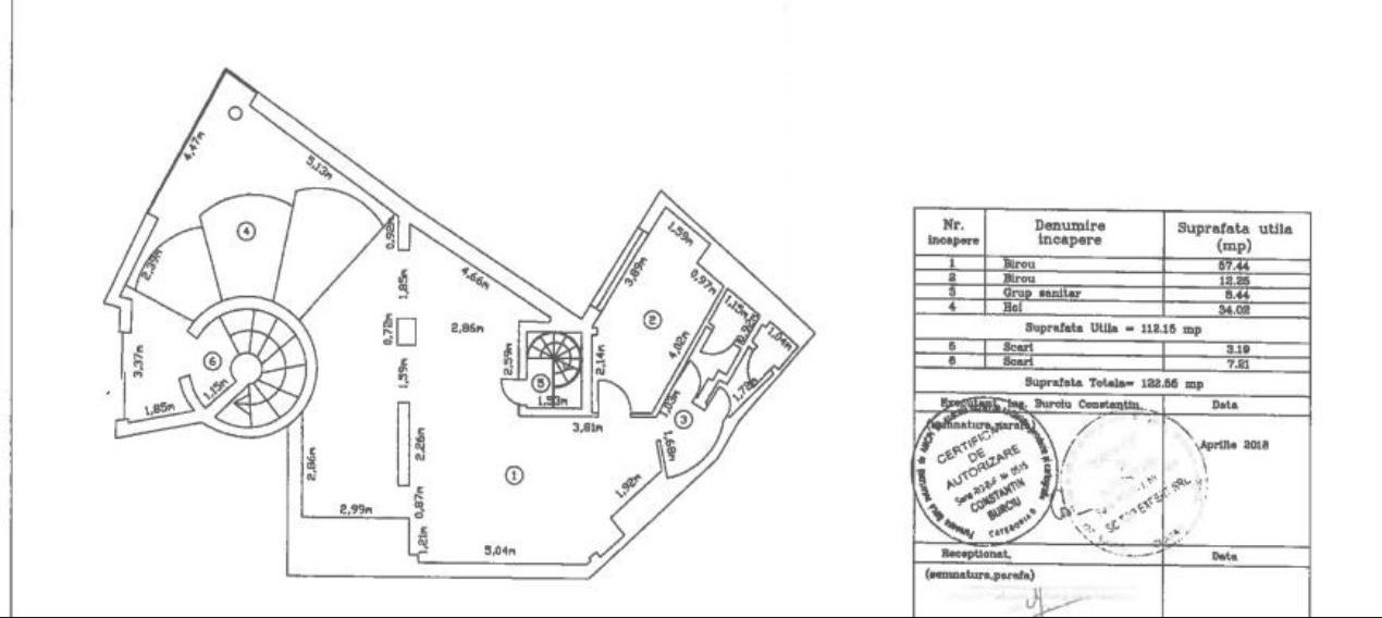
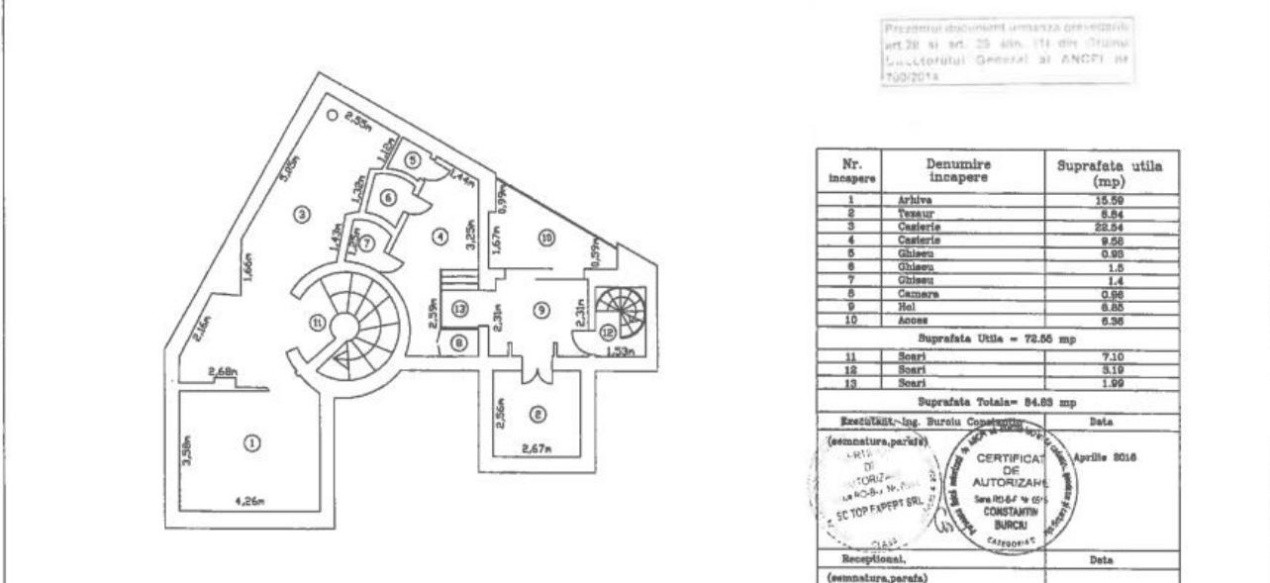
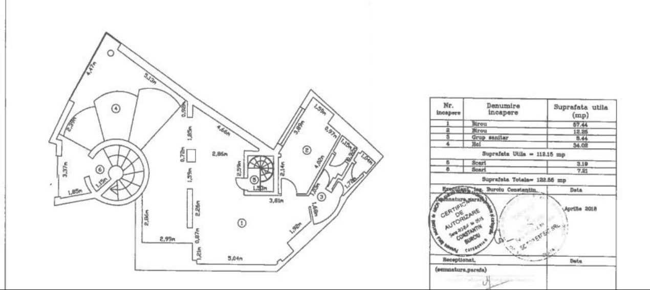
Spațiul are o suprafață utilă de 200 mp (185 mp în prezent, cu posibilitate de extindere după demolarea ghișeelor de la demisol) și beneficiază de o vitrină generoasă de 15 metri liniari, perfectă pentru expunere și branding.
Compartimentarea este flexibilă, putând fi adaptată în funcție de specificul activității – de la clinici medicale până la birouri corporate sau servicii comerciale.
Detalii tehnice:
Suprafață utilă: 200 mp
Etaj: demisol + parter
Intrări: 2 (acces separat pentru clienți și personal)
Băi: 2
Încălzire: centrală proprie
Curent trifazic: nu este instalat, dar se poate obține
Fără ipotecă, fără TVA
An construcție: 1995
Disponibilitate: imediată
Spațiul poate fi închiriat și către persoane juridice străine
Preț de vânzare: 570.000 €
Comision agenție: 2% din prețul final de vânzare
Acest spațiu oferă o combinație excelentă între poziționare, vizibilitate și funcționalitate – o oportunitate ideală pentru investiții sau dezvoltarea propriei afaceri!