






Settlers are placerea de a va propune spre inchiriere un spatiu comercial in zona Obor - Calea Mosilor.
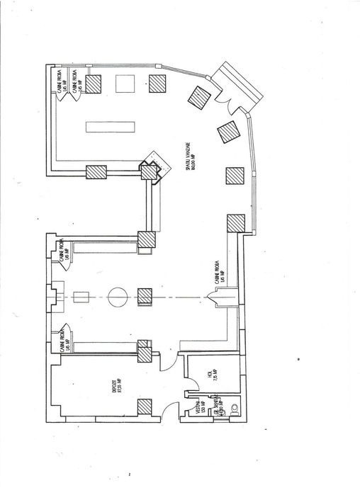
Imobilul este situat la parterul unui bloc cu regim de inaltime P + 10, finalizat in anul 1985, avand o suprafata utila de 192 mp.
Satiul se va inchiria gol, pozele fiind doar deprezentare. Detine un grup sanitar
Este pretabil pentru orice tip de activitate, detinand si curent trifazic.
Imobilul dispune de centrala termica cu incalzire prin calorifere .
Posibilitate parcare in zona.
Disponibilitate de mutare imediata.
Zona dispune de diverse puncte de interes precum farmacii, restaurante, sali de sport, cafenele, banci, zone comerciale, scoli, zone verzi.
Contractul va fi inregistrat la Administratia Financiara.
Modalitate de plata la semnarea contractului : 1 luna avans + 2 luni garantie + 50%+TVA comision.
